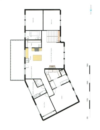
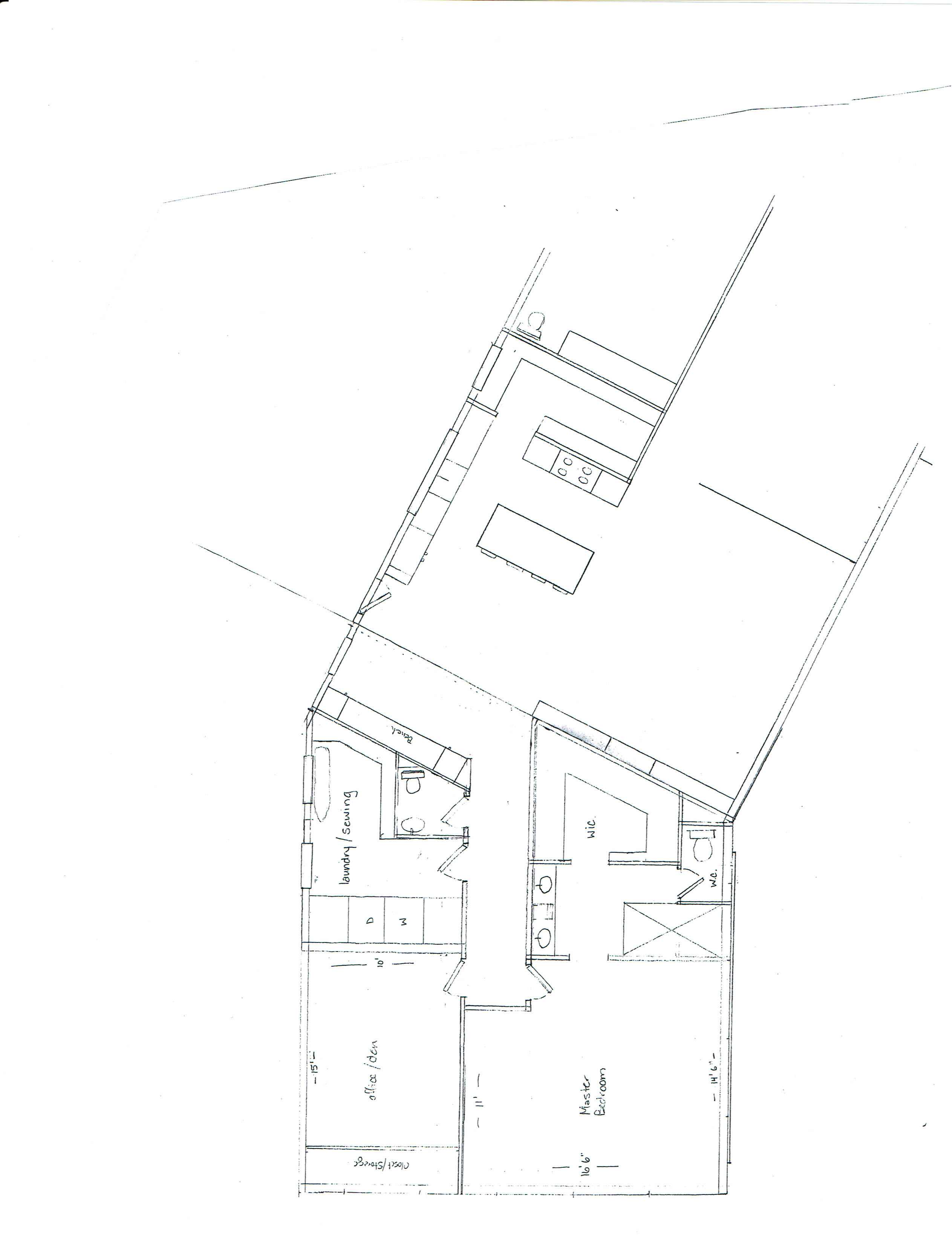
As soon as we started to consider this new house I was drawing, trying to get my ideas on paper. I can never get the vision in my head accurately reflected on paper but that doesn’t stop me from trying. Over the next couple of weeks there were many versions of how our house could potentially work for us.


In all honesty, we have been doing this with potential house plans for years. It’s one of “those things we do” that it turns out most normal couple do not do. Huh.
My sister-in-law gave me contact information for a newly graduated architect she knew and I contacted him with the pictures of our house as it was and how I wish it could be.


He was awesome! He didn’t laugh at my ideas (not out loud anyways) and he worked with my drawings and ideas to give me what I wanted and couldn’t properly draw. He also helped guide us through the process of land surveyors and city documents.
After a, surprisingly small, number of drawings and floorplans passed back and forth we actually had what we needed to get a permit from the city. Unfortunately, that process took a ridiculous amount of time and threw our entire timeline off and cost us two available builders. It was very frustrating and the worst part of renovating, from my perspective.



Now… to make the idea reality…
Good luck with it! We designed our floor plan, too, and were lucky enough to find an architect that was really supportive of our project. Looking forward to seeing how it turns out!
LikeLike